Home Again
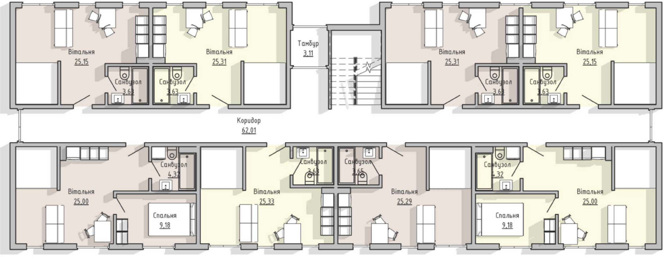
Житло для переселенців
-
будинки для 64 родин4
-
загальна площа проєкту, м22743,2
-
бюджет проєкту€3M
-
зібрано станом на 01.05.2026€1179596

















